ZEHで激突、京大や近畿大、首都大など5組が競う
- 17/10/27
- 個人のお客様・施工店様お役立ち情報,太陽光発電関連ニュース・市場動向
学生が考えたこれからの時代に向けたネット・ゼロ・エネルギー・ハウス(ZEH)モデルとはーー。大学生が民間企業などと連携し、先進的な技術や新たな住まい方を提案するイベント「エネマネハウス2017」の中間報告会が、紀尾井町カンファレンスホール(東京都千代田区)で行われた。

紀尾井町カンファレンスホールで行われた、エネマネハウス2017の中間報告会(写真:渡辺圭彦)
中間報告会では、参加する各大学が考案したZEHモデル住宅の概要を審査委員に対して発表したほか、進捗状況の報告も実施。審査委員はこれらの情報を踏まえて学生に質問するなど、審査が着々と進められた。
イベントの本番まで、残り約3カ月。参加大学の学生たちはみな、気合いの入った表情となっていた。
大阪駅前で展示
エネマネハウスはZEHの普及啓発を目指すイベントだ。参加する大学が提唱するZEHモデル住宅を実際に建築し、一定期間、環境性能やエネルギー性能を測定したり実証したりする。これまで、2014年と15年の2回開催した。
14年は東京(東京ビッグサイト)、15年は横浜(横浜みなとみらい)と、これまでは関東での開催だった。17年はメーン会場を大阪駅前の再開発地区「うめきた2期区域」に移し、関西で初めての開催とした。
参加団体は、京都大学と近畿大学、武庫川女子大学大学院といった関西の大学のほか、関東から、首都大学東京、早稲田大学・芝浦工業大学が名乗りを上げた。
今回のイベント期間は、12月2日~16日。同期間、うめきた2期区域に、各大学のZEHモデル住宅を展示する予定だ。

審査委員長は、一般財団法人建築環境・省エネルギー機構の村上周三理事長(写真:渡辺圭彦)
「先端」と「伝統」を交え、現代の課題に挑む
今回、参加者たちに共通のテーマとして与えられた課題は「ライフデザインイノベーション」。住宅のゼロエネルギー化と、ZEHの普及・ビジネス展開をプランに盛り込みながら、住まいと社会に多様な新しい価値を創造することが求められた。
中間報告で発表された、各大学の提案を少し紹介しておこう。
<京都大学>
京都大学は町家のZEH化を提案した。高齢者が単身で暮らす住居を、学生の下宿として活用することでコミュニティを再生するモデルを描く。

京都大学「まちや+こあ ZEHコアによる町家・コミュニティ再生モデルの提案」。伝統工法で建てられた京町家に、ZEHの要件を満たす「ZEHコア」を部分的に挿入することで町家の意匠を保ちつつ改修。単身高齢者が管理人として居住するコミュニティハウスとして再生し、「ZEHコア」以外の室内は地域に開いた交流活動の場として活用する(写真:京都大学)
<近畿大学>
近畿大学は既存住宅の改修システムが大きなテーマだ。開口部まわりを断熱ユニット化。さらに、既存の低断熱部分を「半屋外」としてとらえることで、システム化を狙う。

近畿大学「エネマネR(アール)ハウス 窓辺のカートリッジとルームガーデンで生まれ変わるすまいとコミュニティ」。開口部まわりの高断熱ユニットを「カートリッジ」と名付け、「カートリッジ」を入れ替えることで住人のライフスタイルの変化に対応。高断熱化しない既存部分は半屋外空間として利用する。既存住宅の安全で快適なストック化と住宅地のコミュニティ再生を目指す(写真:渡辺圭彦)

(資料:近畿大学)
<首都大学東京>
首都大学東京は現代風テラスハウスをテーマとした。通風や日射遮蔽などを考慮して、蒸暑地域でも対応できるモデルだ。

首都大学東京「ZEH Village アジア蒸暑気候下の町屋」。沖縄や東南アジアといった地域を対象とした、通風・日射遮蔽などを考慮した蒸暑地型の住宅モデル。密度の高い都市型居住をイメージし、気候風土に即した現代版テラスハウスを提案する(写真:渡辺圭彦)

(資料:首都大学東京)
<武庫川女子大学大学院>
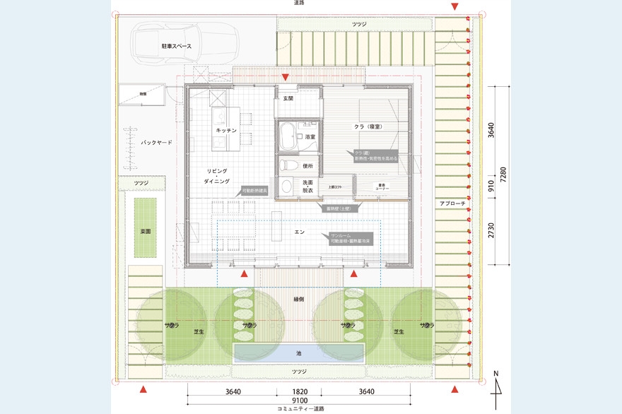
武庫川女子大学大学院は蔵や縁側など伝統的な住環境技術を取り入れたのが特徴だ。建具などを活用して、季節に応じて住まい方が変えられるようにするという。

武庫川女子大学大学院「キセカエハウス 伝統的住環境技術を用いた対話のしつらえ」。安定した室内環境をつくる熱容量の大きな「クラ(蔵)」と、トップライトからの日射エネルギーを取り入れる開放的な「エン(縁)」の2つの空間を用意。可動する断熱建具等によって住み手が柔軟に室内環境を調整する(写真:渡辺圭彦)

(資料:武庫川女子大学大学院)
<早稲田大学・芝浦工業大学>
早稲田大学と芝浦工業大学の合同チームは、築40年のプレハブ住宅を改修。住み継ぐことで住宅地における空き家問題の解消も目指す構想を説明した。

早稲田大学・芝浦工業大学「この郊外の片隅に わたしと家の約80年のものがたり」。郊外に建つ築40年の工業化住宅(プレハブ住宅)を現代的視点で改修し、東京郊外の空き家予備軍を対象に、現代のニーズに応える住まいの可能性を模索する(写真:渡辺圭彦)

(資料:早稲田大学・芝浦工業大学)
いずれも12月の展示に向けて現在進行中の取り組みとあって、審査委員への資料配付も直前になるなどばたついた面もあった。提案は、空き家問題や既存ストック活用、コミュニティ再生といった現在の住宅業界における課題を見据えているだけでなく、IoTやビッグデータなど先端技術と伝統的なパッシブデザインを大胆に取り入れるなど、新鮮な視点を感じる内容がそろっていた。(日経アーキテクチュア「省エネNext」公開のウェブ記事を転載
これからの時代は太陽電池パネル選定が今まで以上に重要になってきます。グローバルのトップ企業トリナ・ソーラーの高品質で高パフォーマンスの製品の中から最適なパネルをお選びください。





