設計者の力で“豆腐形”を払拭 高性能一辺倒から抜け出す
- 18/08/10
- 個人のお客様・施工店様お役立ち情報,太陽光発電関連ニュース・市場動向
設計事務所: 西方設計 × 工務店: 棟晶
札幌市の棟晶は、ドイツ・パッシブハウス研究所によるリフォーム版パッシブハウス認定を日本で初めて取得するなど、先駆的に省エネ住宅に取り組んできた工務店だ。ただ、「豆腐のようなつまらない形の家になる」(棟晶常務の齊藤克也氏)のが悩みだった。
そうした状況から脱却すべく、月寒西モデルハウス〔写真1〕では、西方里見氏(西方設計代表)の力を借りた。温熱環境に優れた設計に定評のある西方氏にも、「北海道ならではの先進手法に挑戦できる」というもくろみがあった。100分の1の基本プランを西方氏が描き、以降の設計実務は棟晶が担当した。
〔写真1〕4層ガラスの樹脂窓

2階リビング・ダイニング。窓は齊藤氏が開発に参画した4層ガラスの樹脂サッシを採用。
吸音のため天井はシージングボードに目透かしのスギ板張りとした(写真:新津写真)。

モデルハウスとして使った後に販売するため、市場ニーズに合った間取りと顧客が入手しやすい価格設定を前提に設計を進めた。1階にビルトイン駐車場を設けて2台の駐車空間を確保し、2階にリビング・ダイニングを配置。2階北側の洋室は採光と排熱に用いる高窓を設けた勾配天井とし、室内空間に変化を与えた。
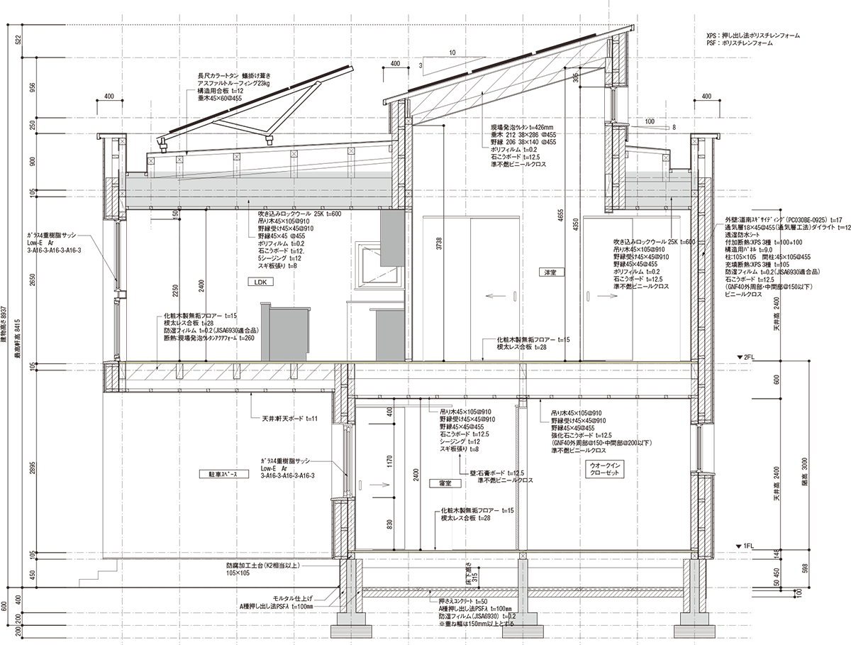
性能面ではオフグリッド化を目標に据えた。太陽光発電パネルを勾配屋根と陸屋根の上に載せたほか、積雪時でも発電できるよう南東、南西の外壁にも設置〔写真2〕。合計8.7kWとした。将来、14.4kWの蓄電池を取り付ければ電力を自給自足できる計画だ。
〔写真2〕壁にも太陽光発電パネル

太陽光発電パネルは、南西(道路側)、南東の壁にも設置。
外壁は素材感のある道南スギのサイディングで覆い、駐車スペースや玄関回りは凹ませて深い陰影を与えた。
窓はLIXIL製の4層ガラス樹脂サッシの試作品(写真:新津写真)
外壁には合計厚さ305mmのポリスチレンフォーム、窓には4層ガラスの樹脂サッシを使い、外皮平均熱貫流率(UA値)は0.19W/m2Kを確保した。室内の過乾燥を防ぐため、浴室を一体のシステムに組み込んだダクト暖冷房換気を採用している〔写真3〕。
〔写真3〕過乾燥防止の換気システム

1階天井裏に、全熱交換式第1種換気とビルトイン式暖冷房を組み合わせたダクトを設置。
熱交換素子がアルミ製で水蒸気の多い浴室などの排気も統合できるため、過乾燥を防止できる(写真:新津写真)

2階平面図

1階平面図(1/150)

(矩計図)
建築概要
- 住宅名:月寒西モデルハウス
- 基本設計者:西方設計
- 実施設計・施工者:棟晶
- 完成年月:2017年4月
- 建築面積:63.07m2
- 施工面積:115.93m2
- 延べ面積:114.28m2
- 1階床面積:56.31m2
- 2階床面積:57.97m2
- 主たる居室の面積:50.91m2
- その他の居室の面積:40.31m2
- 非居室の面積:19.04m2
- 階数:2階
- 構法:木造在来工法
- 本体価格:2300万円
- 坪単価※:66万円
※本体価格(税込み)÷施工面積

主な仕様と設備
出典:日経ホームビルダー、2018年6月号 pp.57-59 特集2 コラボでトライ! 省エネ住宅
記事は執筆時の情報に基づいており、現在では異なる場合があります。
(日経ホームビルダーのウェブ記事を抜粋転載)
環境にやさしく世界のどこでも利用しやすい太陽光を使って発電する。研究・開発力で世界をリードする太陽光発電企業のトリナ・ソーラーは、高品質・高効率、付加価値の高い太陽電池パネルとソリューションをより多くの人々が利用できる世界の実現に努めています。





